Cedar Lodge, Mott Street, High Beach

For Sale £1,395,000

5 4 3
** BRAND NEW PROPERTY READY FOR OCCUPATION **

Nestled in the charming area of Mott Street, High Beach, this exquisite new build property offers a perfect blend of modern living and comfort. Spanning an impressive 2,367 square feet, this residence boasts an abundance of space, featuring three elegantly designed reception rooms that provide ample room for both relaxation and entertaining.

The property comprises five well-appointed bedrooms, ensuring that there is plenty of space for family and guests alike. With four contemporary bathrooms, convenience and privacy are paramount, making this home ideal for busy households.

The ground floor benefits from underfloor central heating, providing a warm and inviting atmosphere throughout the year. Additionally, the property is equipped with gas central heating, ensuring efficient warmth during the colder months. Security is a priority, with a burglar alarm and CCTV system in place, offering peace of mind for you and your loved ones. For those with vehicles, the property includes parking for two cars in the garage plus further parking on the driveway for several vehicles, a valuable feature in this desirable location.

This stunning home is perfect for those seeking a modern lifestyle in a tranquil setting, with the added benefit of being close to local amenities and beautiful green spaces. Do not miss the opportunity to make this exceptional property your own.

Located between the bustling towns of Loughton and Waltham Abbey, this property benefits from a fantastic blend of urban convenience and natural beauty. The neighbouring towns offer a variety of boutique cafes, independent shops and restaurants, whilst the scenic Epping Forest provides endless opportunities for outdoor activities. For commuters, the A112 and M25 offer excellent road connectivity to Central London and beyond.

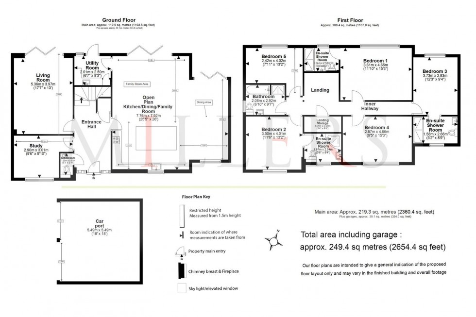
GROUND FLOOR

Living Room (5.36m x 3.97m)

Study (2.90m x 3.01m)

Cloakroom WC (1.60m x 0.86m)

Utility Room (2.01m x 2.50m)

Kitchen Dining Family Room (7.76m x 7.92m)

FIRST FLOOR

Bedroom One (3.61m x 4.65m)

En-suite Shower Room (2.51m x 1.55m)

Bedroom Two (3.50m x 4.01m)

En-suite Shower Room (2.54m x 1.68m)

Bedroom Three (3.73m x 2.83m)

Bedroom Four (2.87m x 4.66m)

Bedroom Five (2.42m x 4.02m)

Bathroom (2.92m x 2.08m)

EXTERNAL AREA

Car port (5.49m x 5.49m)

  • OPEN PLAN KITCHEN FAMILY ROOM
  • EV CHARGING POINT
  • OFFICE / PLAYROOM
  • UTILITY ROOM & CLOAKROOM
  • 5 BEDROOMS & 3 EN SUITE'S
  • DOUBLE GARAGING
  • UNDERFLOOR HEATING
  • BURGLAR ALARM & CCTV
  • 10 YEAR GUARANTEE
  • SITTING ROOM LOOKS AT GARDENS
Floorplan for Cedar Lodge, Mott Street, High Beach
EPC Graph for Cedar Lodge, Mott Street, High Beach
Similar Property

Book a valuation

Find out how much your property is worth