Hilltop Cottages, Mount Road, Theydon Mount.

For Sale £699,995

3 1 2
* SEMI DETACHED HOUSE * STUNNING RURAL SETTING * THREE BEDROOMS * BEAUTIFUL SCENIC VIEWS * DOUBLE GARAGE * NO ONWARDS CHAIN * POTENTIAL TO EXTEND (STP) *

Set in a beautiful rural landscape, this charming semi-detached cottage offers delightful accommodation with stunning views of the Essex countryside. Located a short drive from Epping Town, residents benefit from a vibrant high street, a well-connected train station to London & excellent schools.

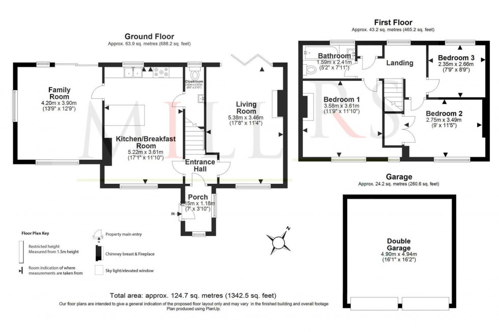
Spanning approximately 1,150 square feet, the cottage features a welcoming entrance porch leading to a bright hallway & a modern kitchen breakfast room equipped with wooden worktops, a stylish range cooker & a double-width butler sink. A door connects to a cloakroom with a WC & a second reception room with garden access—perfect for family gatherings.

The spacious living room features a cozy fireplace and folding doors that showcase views of the landscaped garden. On the first floor, the master bedroom includes a charming fireplace & wooden flooring, alongside two additional bedrooms & a family bathroom with a contemporary suite.

Access is via a peaceful private lane off Mount Road, ensuring tranquility. The rear garden, approximately 120 feet long, is primarily laid to lawn & features fruit trees & scenic views — an ideal space for children & pets. There are two garages located to the side of the property, set away from the plot, but providing parking. The plot presents a genuine opportunity to expand at the rear of the property, potentially increasing the downstairs area (subject to planning).

Theydon Mount is close to Epping and well-connected to Theydon Bois and Abridge, offering a range of shops, restaurants & traditional pubs. Families can easily access numerous golf courses & reputable schools. Tube transport to London is available at Epping & Theydon Bois stations, with convenient road links to the M11 & M25. Theydon Bois tube station is just 3.9 miles away & M25 Junction 26 is 6.4 miles from your doorstep.

GROUND FLOOR

Porch (2.13m x 1.17m)

Living Room (5.38m x 3.46m)

Kitchen Breakfast Room (5.22m x 3.61m)

Cloakroom WC (2.59m x 0.86m)

Family Room (4.20m x 3.90m)

FIRST FLOOR

Bedroom One (3.58m x 3.61m)

Bedroom Two (2.75m x 3.49m)

Bedroom Three (2.35m x 2.66m)

Bathroom (2.41m x 1.57m)

EXTERNAL AREA

Rear Garden (38.70 x 17.31)

Garage 1 & 2 (4.90m x 4.93m)

  • SEMI RURAL LOCATION
  • 5 MINS - 2.3 MILES TO STATION
  • SEMI DETACHED FAMILY HOUSE
  • 120FT REAR GARDEN PLOT
  • NO ONWARD CHAIN
  • TWO GARAGES EN BLOC
  • APPROX. 1342.5 SQ FT VOLUME
  • 3 RECEPTIONS & 3 BEDROOMS
  • SCENIC VIEWS OF COUNRTYSIDE
Floorplan for Hilltop Cottages, Mount Road, Theydon Mount.
EPC Graph for Hilltop Cottages, Mount Road, Theydon Mount.
Similar Properties

Book a valuation

Find out how much your property is worth