Hastingwood Road, Hastingwood, Harlow

For Sale £800,000

5 3 3
Nestled in the serene surroundings of Hastingwood, this attractive detached house offers a perfect blend of comfort and elegance. With five spacious bedrooms and three well-appointed bathrooms, this property is ideal for families seeking a tranquil lifestyle while still being conveniently close to local amenities.

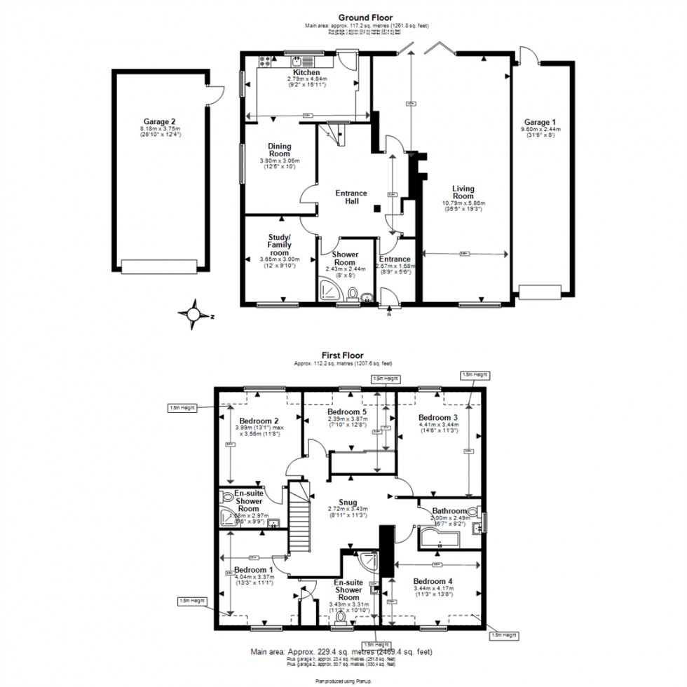
Upon entering, you are greeted by a welcoming entrance lobby that leads into a large hallway, setting the tone for the generous living spaces that follow. The expansive reception room, measuring an impressive 35 feet, features a charming exposed brick fireplace with a log burner, creating a warm and inviting atmosphere. Bifold doors open seamlessly to the rear garden, allowing for an abundance of natural light and the possibility of dividing the space for added versatility. Adjacent to this, the dining room flows into a fitted kitchen, perfect for family meals and entertaining. A second reception room, currently utilised as an office, provides additional flexibility, while a convenient shower room and cloakroom complete the ground floor.

Ascending to the upper floor, you will find a snug landing area that leads to two master suites, each with its own en-suite shower room, ensuring privacy and comfort. Three further double bedrooms and a bright family bathroom provide ample space for all.

The exterior of the property is equally impressive, with a lawned front garden adorned with feature trees and two driveways leading to two garages, offering parking for up to five vehicles. The rear garden is a true oasis, featuring an extensive raised decking area with a wooden pergola, perfect for alfresco dining and entertaining. The lush lawn, bordered by shrubs and hedges, includes a delightful feature pond with a waterfall, enhancing the tranquil setting.

Situated in a small cul-de-sac and surrounded by open countryside, this property is offered chain free, making it an excellent opportunity for those looking to settle in a peaceful yet accessible location.

Entrance Lobby

Entrance Hall (2.67m x 1.68m)

Living Room (10.79m x 5.86m)

Study/ Family room (3.65m x 3.00m)

Shower & Cloak Room (2.44m x 2.44m)

Dining Room (3.80m x 3.06m)

Kitchen (2.79m x 4.84m)

First Floor Snug Landing (2.72m x 3.43m)

Bedroom 1 (4.04m x 3.37m)

En-suite Shower Room (3.30m x 3.43m)

Bedroom 2 (3.99m x 3.56m)

En-suite Shower Room (2.97m x 1.85m)

Bedroom 3 (4.41m x 3.44m)

Bedroom 4 (3.44m x 4.17m)

Bedroom 5 (2.39m x 3.87m)

Bathroom (2.49m x 2.01m)

EXTERIOR

Front Garden & Driveways

Garage 1 (9.60m x 2.44m)

Garage 2 (8.18m x 3.76m)

Garden 81' x 74'

  • DETACHED CHALET BUNGALOW
  • PRICE GUIDE £800,000 - £825,000
  • TWO GARAGES
  • FIVE DOUBLE BEDROOMS
  • TWO ENSUITES
  • KITCHEN/DINING ROOM
  • REAR GARDEN 81'
  • CHAIN FREE
  • SURROUNDED BY OPEN COUNTRYSIDE
  • LARGE LOUNGE AREA 35'
Floorplan for Hastingwood Road, Hastingwood, Harlow

Book a valuation

Find out how much your property is worth