Godfrey House, Edinburgh Gate, Harlow

For Sale £370,000

2 2 1
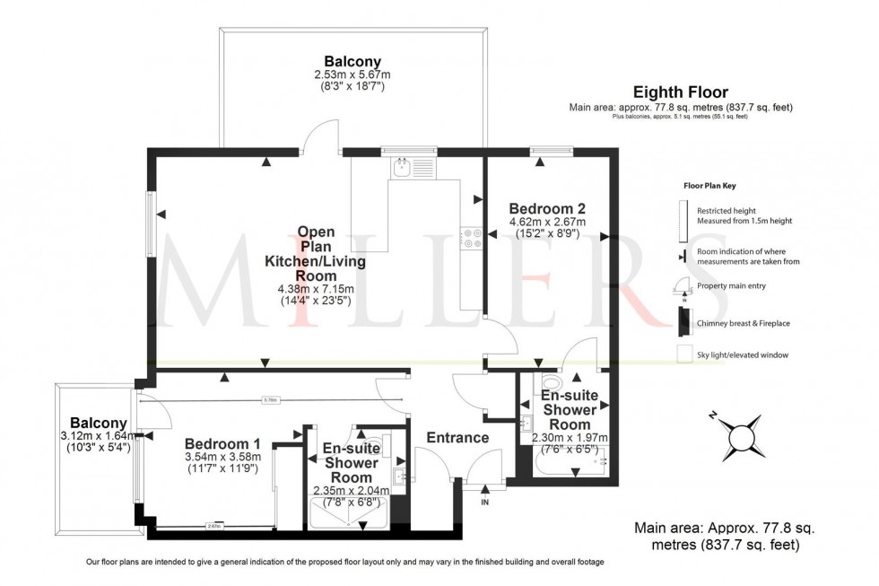
Occupying an enviable position on the 8th floor, this impressive two-bedroom apartment enjoys far-reaching views across Harlow, providing a striking backdrop to everyday living. These expansive vistas can be fully appreciated from two generous private balconies.

The apartment is accessed via a welcoming entrance hallway that leads into the heart of the home: a spacious, light-filled open-plan kitchen, dining, and living area, thoughtfully designed to suit modern lifestyles. The contemporary kitchen is both stylish and practical, featuring granite worktops and a comprehensive range of integrated appliances, creating an ideal space for cooking and entertaining.

From the main living area, an inner hallway leads to the accommodation. The principal bedroom benefits from its own private balcony and a well-appointed en-suite shower room. The second bedroom is a well-proportioned double, offering ample space for freestanding furniture and additional storage. Further benefits include a secure allocated parking space, adding both convenience and peace of mind.

The property benefits from convenient access to local shops, everyday amenities, and nearby cafés. Harlow Town Centre being only a short distance away, offering a wider range of retail and dining options. Excellent transport links are close by, including Harlow Town and Harlow Mill stations for direct routes into London, while frequent bus services connect easily across the town. The area is also well-served by green spaces, with nearby parks, walking routes, and riverside paths providing a peaceful escape for weekend strolls.

** Under the Estate Agency Act 1979, Section 21, Disclosure of interest, the Vendor of this property is associated with Millers Estate Agents **

Open Plan Kitchen/Living Room (4.38m x 7.15m)

Balcony One (2.51m x 5.66m)

Bedroom One (3.53m x 3.58m max)

En-suite (max) (2.34m x 2.03m)

Balcony Two (3.12m x 1.64m)

Bedroom Two (4.62m x 2.67m)

En-suite (max) (2.29m x 1.96m)

EXTERIOR

Allocated Parking Space

  • TWO BEDOOMS & TWO EN-SUITES
  • APPROX. 837.7 SQ FT VOLUME
  • OPEN-PLAN LIVING AREA
  • 8th FLOOR STUNNING VIEWS
  • AMAZING BALCONIES X2
  • SECURE ALLOCATED PARKING
  • ELEVATOR SERVICE TO FLOORS
  • INTERNAL VIEWING A MUST
  • APPROX 996 YEAR LEASE
Floorplan for Godfrey House, Edinburgh Gate, Harlow
EPC Graph for Godfrey House, Edinburgh Gate, Harlow

Book a valuation

Find out how much your property is worth