The Elms, Masons Bridge Farm Rd, Fiddlers Hamlet, Epping

For Sale £975,000

3 2 2
This enchanting character home sits gracefully on the edge of Southern Epping, nestled within Fiddlers Hamlet. Set on a generous plot with ample parking and a beautiful garden, the property tells a story of thoughtful evolution. Once a classic cottage, the house has been lovingly extended and enhanced over the years. Its weather-boarded exterior, hardwood sash windows, and striking chimney stacks evoke a sense of timeless charm, while the addition of a Victorian red brick facade around a century ago lends the home an elegant presence.

Step inside to discover a wealth of cottage-inspired features, from exposed beams and open woodwork to charming brick fireplaces. The galley-style kitchen, complete with an AGA, forms the heart of the home, while two inviting reception rooms and a bright breakfast room offer versatile spaces for family life or entertaining. Upstairs, three bedrooms and a family bathroom provide a peaceful retreat.

The southwest-facing garden is a true haven, mainly laid to lawn and framed by established flower borders. A stone sitting area by the patio doors invites you to relax and enjoy the tranquil surroundings. Beyond, a generous rear garden is filled with mature shrubs, trees, and bushes, attracting a variety of birdlife. The gentle sound of a nearby brook completes this idyllic outdoor setting.

Fiddlers Hamlet is just a short drive from the town’s amenities. Families will appreciate the proximity to Ivy Chimneys Primary School and easy access to Epping Central Line Station for journeys into London. The surrounding countryside and farmland offer a sense of escape, while leisure opportunities abound with Epping Golf Course nearby and the welcoming Merry Fiddlers Family Public House just across the way. Epping High Street is home to a variety of shops, bars, restaurants, and its lively Monday market. For those who travel further afield, the M11 and M25 are within easy reach, and Stansted Airport is just 25 minutes away.

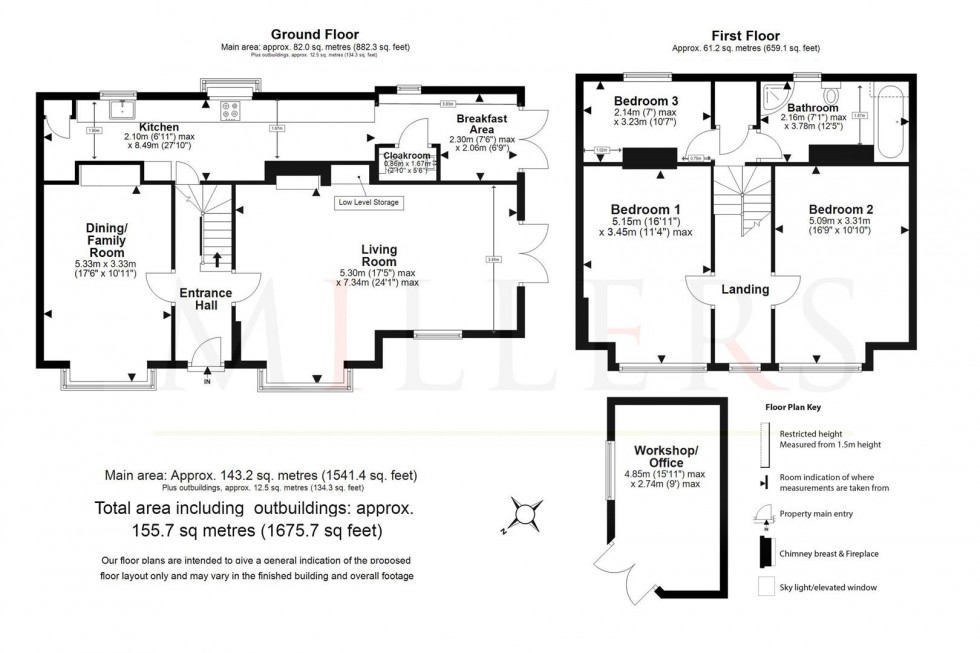
GROUND FLOOR

Dining / Family Room (5.33m x 3.33m)

Living Room (max) (7.34m x 5.31m)

Breakfast Room (2.29m x 2.06m)

Fitted Kitchen (max) (8.48m x 2.11m)

Cloakroom WC (1.68m x 0.86m)

FIRST FLOOR

Bedroom One (5.16m x 3.45m)

Bedroom Two (5.11m x 3.30m)

Bedroom Three (3.23m x 2.13m)

Family Bathroom (max) (3.78m x 2.16m)

EXTERIOR

Rear Garden (max) (22.25m x 17.27m)

Large Potting Shed (max) (4.85m x 2.74m)

Overall Plot (max) (35.05m x 19.81m)

  • PERIOD COTTAGE VICTORIAN STYLE
  • 3 MINS - 1.3 MILES TO STATION
  • EXPOSED BRICK BUILT FIRPLACES
  • LARGE REAR GARDEN
  • APPROX. 1,675.7 SQ FT VOLUME
  • SOUTH WESTERLY FACING PLOT
  • SEMI RURAL HAMLET POSITION
  • GAS RADIATOR HEATING
  • POTTING SHED / HOME OFFICE
Floorplan for The Elms, Masons Bridge Farm Rd, Fiddlers Hamlet, Epping
EPC Graph for The Elms, Masons Bridge Farm Rd, Fiddlers Hamlet, Epping
Similar Properties

Book a valuation

Find out how much your property is worth